Ficha técnica
| Dimensiones exterior | 4,60 m alto x 3 m de ancho x 2,36 m de profundidad |
|---|---|
| Peso | 1600kg |
| Nº Usos | Usos ilimitados |
| Otras características | Agua caliente |
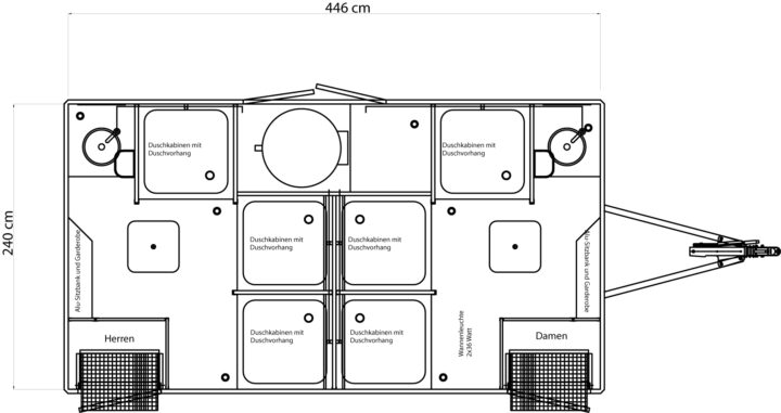
El modelo de remolque FTD 460 está pensado para eventos deportivos con dos departamentos, uno para damas y otra para caballeros equipados con todos los detalles necesarios: zona con lavabo y espejo, inodoro y ducha y zona de vestuario con banco y colgadores para guardar la ropa.
| Dimensiones exterior | 4,60 m alto x 3 m de ancho x 2,36 m de profundidad |
|---|---|
| Peso | 1600kg |
| Nº Usos | Usos ilimitados |
| Otras características | Agua caliente |